iroda

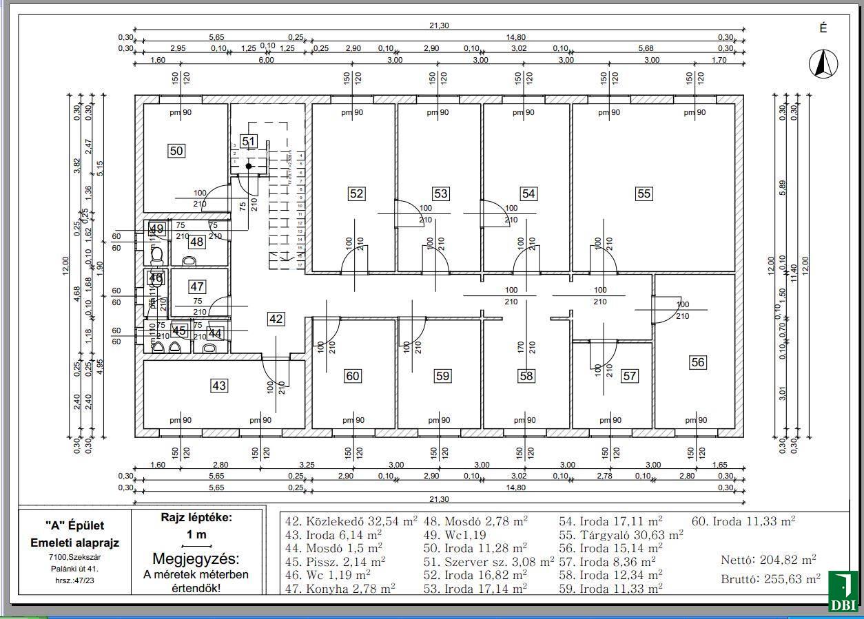
Szekszárd, Palánki út 41. kiadó iroda (A épület/em. 156,34 m2)

Adatok

Kapcsolattartó

Leírás

Szekszárd város északi határában lévő, M6-os autópályáról kiválóan megközelíthető telephelyen, utcafronti kétszintes irodaépületben irodák kiadók. Csendes környezet, családias hangulat!

Igény esetén "A" épületünk emeletén akár 156,34 m2 nagyságú - légkondicionálással rendelkező - irodaterületet tudunk rendelkezésre bocsátani! Az emeleten konyha, szociális helyiségek biztosítva vannak. Legnagyobb irodahelyiségünk 30,63 m2, mely tárgyalóként kiválóan használható.

Bérleti díj ajánlatunk: 1600 Ft/m2/hó + Áfa

Üzemeltetési díj - iroda esetén: 200 Ft/m2/hó +Áfa

Telephelyünkön raktárakat, műhelyeket és szabad területet is kínálunk. Raktárak, műhelyek igény esetén fűthetőek.

A telephely közvilágítással rendelkezik, ügyfél forgalom bonyolítására kiválóan alkalmas, így kis- és nagykereskedések számára is ajánljuk. A telephelyen 24 órás biztonsági portaszolgálat működik.

Kérjük, időpont egyeztetésért, további információért keresse kapcsolattartónkat!