iroda
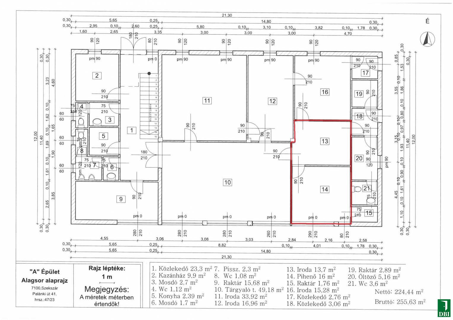
Szekszárd kiadó iroda A ép. 13-14 sz.
Adatok
- Cím: Szekszárd, Szekszárd, Palánki u. 41
- Értékesítés típusa: Kiadó
- Ingatlan típusa: iroda
- Méret: 17 m2
- Ár: 1 600 Ft/m2/hó
Kapcsolattartó
- Neve: Szűcs Judit
- Email címe: jszucs@dbi.hu
- Telefonszáma: 06-30-445-0148
Leírás
Kiadásra kínáljuk irodánkat Szekszárd Palánki utca 41 alatti ingatlanunkban. Telephelyünkön az A épület alagsorában található az iroda, de ezen felül további helyiségeket is tudunk biztosítani igény esetén. Telephelyünkön továbbá műhelyek és szabad területek is bérelhetők. Értékei biztonságára 0-24 órás biztonsági szolgálat gondoskodik.
Az ingatlan bérleti díja 1600 Ft/m2/hó+Áfa, amely tartalmazza a normál használatból adódó közüzemi díjakat. Ennek értelmében a hirdetésben szereplő iroda bérleti díja 28.416,-Ft/hó+Áfa.
Amennyiben hirdetésünk felkeltette érdeklődését forduljon hozzánk bizalommal!



