iroda
Bp. XIII. Gogol u. 13. 119. iroda (31 m2)
Adatok
- Cím: Budapest, Gogol u. 13.
- Értékesítés típusa: Kiadó
- Ingatlan típusa: iroda
- Méret: 31 m2
- Közművek: Víz, Csatorna, Gáz, Áram
- Ár: 2 700 Ft/m2/hó
Kapcsolattartó
- Neve: Szűcs Judit
- Email címe: jszucs@dbi.hu
- Telefonszáma: 06-30-445-0148
Leírás
Gogol 13 Irodaházban kiadó emeleti iroda!
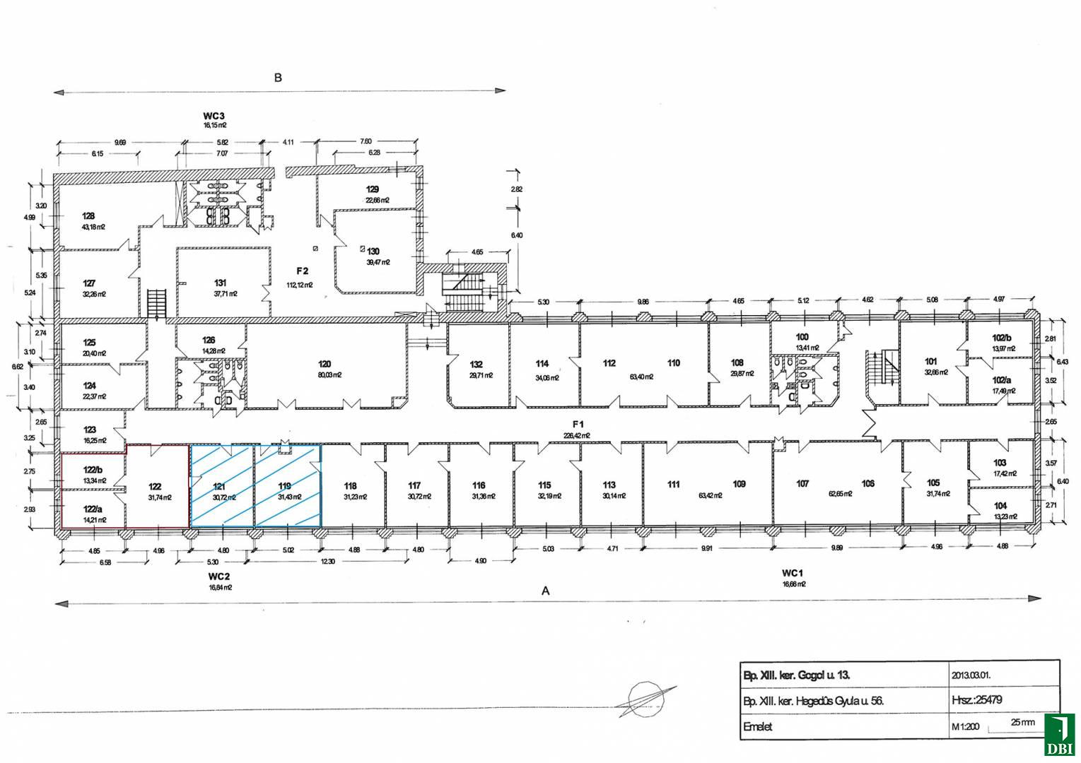
Kiadásra kínáljuk a Budapest, 13. kerület Gogol utca 13 szám alatti, B kategóriás irodaházunk emeletén található klimatizált, világos 31,43 m2 irodánkat (alaprajzon 119 sz. helyiség).
Az irodaház óriási előnye a kiváló megközelíthetőség. Közel vagyunk a pezsgő Váci úti irodafolyosóhoz, 5 percre vagyunk a nyüzsgő Lehel tértől vagy a népszerű Pozsonyi utcától is. Parkolási gondokra is tudunk megoldást nyújtani.
A bérelhető iroda az emeleten található, közel a közös használatú konyhához és mosdó helyiségekhez.
Az emeleten kizárólag a bérlőink és saját magunk részére hasznosított, 80 m2-es nagy tárgyaló is alkalmi jelleggel bérelhető. (Fél ill. egy napos időszakokra.)
Az irodaházban 24 órás őr- és portszolgálat működik.
Az irodák bérlésekor nem számítunk fel közös területi szorzót!
Az irodaház szolgáltatásait, a közművek költségeit tartalmazza az üzemeltetési költség. (Kivétel az iroda takarítása, telefon és internet szolgáltatást. A házban UPC, Invitel és Telekom szolgáltatásait lehet elérni és a bérlők maguk szerződhetnek le a válaszott szolgáltatóval igény szerint.)
Igény esetén a szomszédos 121-es irodahelyiség (30,72 m2) is bérelhető illetve további szabad irodákat is ajánlani tudunk az emeleten.
Bérleti díj: 2700 Ft/m2/hó+ÁFA, összesen 84.861 Ft/hó+ÁFA,
Üzemeltetési ktg.: 1000 Ft/m2/hó+ÁFA, összesen 31.430 Ft/hó+ÁFA
Üzemeltetési ktg.: 1000 Ft/m2/hó+ÁFA, összesen 31.430 Ft/hó+ÁFA








