iroda

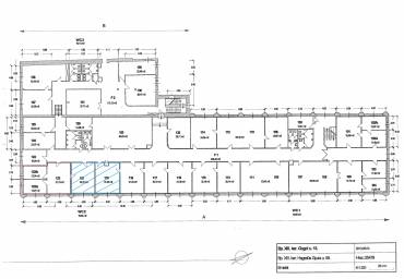
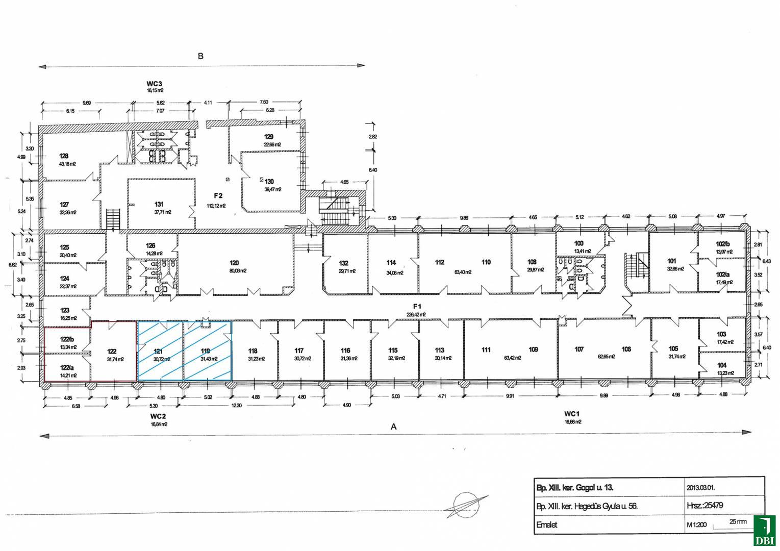
Bp. XIII. Gogol u. 13. 119,121. irodák (62 m2)

Adatok

Kapcsolattartó

Leírás

CSENDES, NYUGODT KÖRNYEZETBEN DOLGOZHAT, HA NÁLUNK BÉREL IRODÁT.
A Váci úti irodafolyosóhoz közel és a 3-as metrótól, Lehel tértől 5 percnyire kínáljuk irodáinkat kiadásra B kategóriás irodaházunkban.
A 119 és 121 sz. helyiségek, világos, kellemes, légkondicionált, laminált padlós, bútorozatlan, egymásba nyíló, de külön bejárattal rendelkező irodák, együttesen 62,15 m2 nagyságúak (31,43 m2 + 30,72 m2). Az emeleten két mosdóblokk és egy közös használatú felszerelt konyha található.

Az ingatlan megközelítése kiváló, ajánljuk azoknak, akik belvároshoz közel, de mégis nyugodt környezetben kívánnak dolgozni.

Jó hírünk, hogy nincs közös területi szorzó! Ön annyit fizet ahány négyzetméter irodát önállóan használ.

Bérleti díj: 2.700,- Ft/m2/hó+Áfa
Üzemeltetési díj: 1.000,- Ft/m2/hó+Áfa

Az üzemeltetési díj tartalmazza: a közös használatú terek használatát és takarítását (konyha, mellékhelyiség, folyosó, tárgyaló), rezsit, általános karbantartás, légkondicionáló használata, karbantartása

A bérleti díj és az üzemeltetési díj nem tartalmazza: a vezetékes telefon és internet szolgáltatás díját és az irodák takarításának költségeit, melyet a Bérlő köteles viselni. (Irodaházunkban UPC, Invitel és Magyar Telekom szolgáltatók is elérhetőek!!)
A közös területek takarításáról, rendben tartásáról, karbantartásáról mi gondoskodunk.
Az irodaház mellett kerítéssel, sorompóval lezárt területen tudunk bérlésre kültéri beállót biztosítani, kényelmes, jól parkolható helyekkel. A bérleti díj kedvező: 15.000 Ft/hó/szgk +ÁFA.

A kerékpárral munkába járóknak biciklitárolására is nyújtunk megoldást.

A recepción őr- és portaszolgálat gondoskodik a biztonságról és a 0-24 órás elérhetőségről. Az irodaházba illetve a parkolóba csak ellenőrzött személyek tudnak bejutni.

Az emeleten jelenleg további irodák is bérelhetőek, kérjük, tekintse meg hirdetéseinket, érdeklődjön kapcsolattartónknál.

Az emeleten kizárólag a bérlőink és saját magunk részére hasznosított, 80 m2-es nagy tárgyaló is alkalmi jelleggel bérelhető. (Fél ill. egy napos időszakokra.)

Hívja kapcsolattartónkat bizalommal és kérjen időpontot, ismerje meg az ingatlant mielőbb!